西七条の京町家
住居にも、お宿運営にも。
多彩な用途を秘めた京町家。
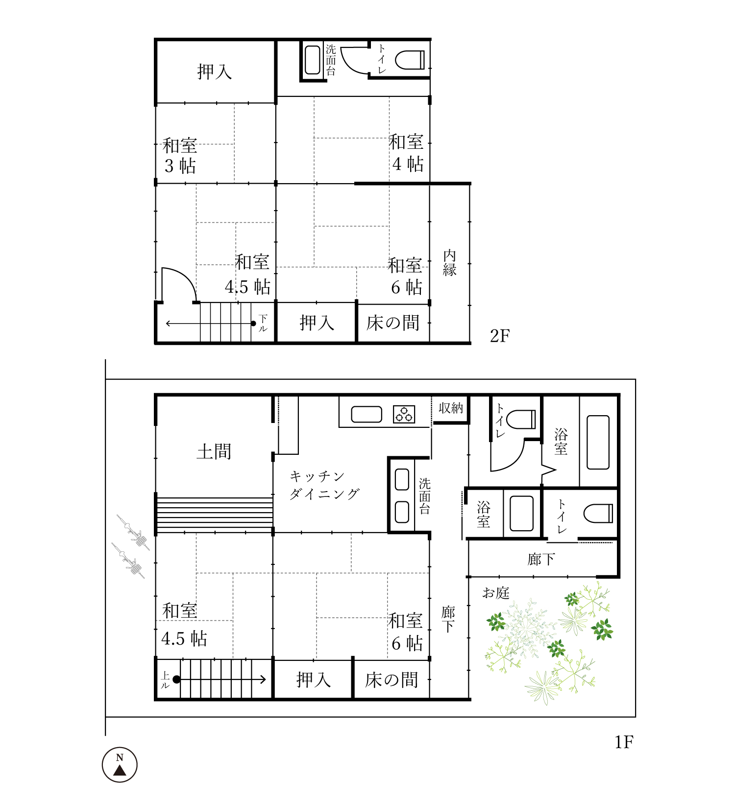
京都らしい趣のある京町家。6DKと広すぎない間取りのため、二世帯住宅や仕事場兼住宅などに使用してもたっぷりと空間を使うことが可能ではないでしょうか。
閑静な住宅街にありながら、緑あふれる観光地として注目を集める梅小路エリアに位置します。JR山陰本線「丹波口駅」は徒歩約12分、JR山陰本線「梅小路京都西駅」は徒歩約13分で利便性が高い場所でもあります。
AREA
梅小路京都西駅から徒歩圏内エリア。
閑静な住宅街ながら、駅周辺ではファミリーで楽しめる施設が充実した賑わいを見せ、京都観光の新たなサブゲートとしての役割を担っています。“京都の玄関口”であるJR京都駅から電車で1駅と利便性が高く、スーパー・コンビニも豊富にあり買い物には困らなさそうです。
地域住民の憩いの場「梅小路公園」や「京都水族館」、鉄道好きなら一度は訪れたい「京都鉄道博物館」がちょっとした散歩に訪れる事の出来る距離にあります。
また、新たな産業の拠点として商業施設が集まる「京都リサーチパーク」や京都の飲食業を支える「京都市中央卸売市場」なども近くにあり、美味しい食べ物屋さんにも困りません。日々の暮らしから京都散策まで飽きることのないエリアではないでしょうか。
観光地としての側面と、暮らしに寄り添う閑静な側面、2つの表情を見せるエリアでお宿運営やセカンドハウスとしていかがでしょうか。
PLAN
2020年7⽉ 外壁塗装・浴室、洗⾯化粧台新設・畳張り替え済み。
デザイン性の高い洗面台や、窓ガラス、引き戸の取っ手など細部に繊細な装飾が施され、レトロで趣があります。IHコンロ付きのキッチンダイニングは、現代的な印象で和モダンのような魅力も。柱や床板はしっかりとした一枚板が使用され、美しく目を引きます。
廊下からはお庭を拝むことができ、明るく日が射し込み、風通しも良いので快適にお過ごしいただけます。間口が7.5mと広く、開放感もあります。
PHOTOS
VIRTUAL TOURバーチャル内覧
画面をドラッグ/スワイプしたり、画面内の矢印やアイコンをクリック/フリックすることで室内の様子がご覧いただけます
DETAILS
| 価 格 | 6,190万円 |
|---|---|
| 種 類 | 中古住宅(京町家) |
| 所在地 | 京都市下京区西七条西八反田町121番地 |
| きょうとし しもぎょうく にししちじょう にしはったんだちょう | |
| 交 通 | JR山陰本線 丹波口駅 徒歩約12分 |
| JR山陰本線 梅小路京都西駅 徒歩約13分 | |
| JR京都線 西大路駅 北出口 徒歩約20分 | |
| 敷地面積 | 【公簿】93.22m²(約28.19坪) |
| 【現況・簡易テープ測量】約92.42m²(約27.95坪) | |
| 私道負担 | 有 約0.8m² |
| 建物面積 | 【公簿】1階:60.85m² 2階:53.66m² 延べ:114.51m²(約34.63坪) 建物未登記有 |
| 【現況・簡易テープ測量】1階:約68.23m² 2階:約53.29m² 延べ:約121.52m²(約36.75坪) | |
| 建物構造 | 木造2階建 |
| 築年月 | 築不詳 ※閉鎖登記簿に昭和21年(1946年)4月の記載有り |
| 間 取 | 6DK+お庭 |
| 接道状況 | 幅員約3.80mの西側道路(私道)に約7.5m接道 |
| 設 備 | 上下水道・都市ガス・電気 |
| 用途地域 | 準工業地域 |
| 法令制限 | 20m第3種高度区域、準防火地域、市街地型美観形成地区、遠景デザイン保全区域、屋外広告第5種地域、都市機能誘導区域、居住誘導区域、既成都市区域、宅地造形等工事規制区域 |
| 引渡し/現況 | 即日/空家 |
| 建ぺい率/容積率 | 60%/160%(200%) |
| 地目/地勢 | 宅地/平坦 |
| 土地権利/国土法届 | 所有権/不要 |
| 小学校/中学校 | 七条第三小学校 歩約5分(約396m)/七条中学校 歩約3分(約227m) |
| 都市計画 | 市街化区域 |
| 備 考 | ※セットバック 約0.8m² ※2020年7⽉ 外壁塗装・浴室、洗⾯化粧台新設・畳張り替え ※写真内の動産類は販売価格に含まれません。 ※本物件は現状有姿での取引とします。 |
| 取引態様 | 仲介(介断) |
| 担当者/物件番号 | 鬼頭/70103 |
| 最終更新日 | 2026年3月2日(月曜日) |
| 次回更新予定日 | 2026年3月16日(月曜日) |


