二条城近くの京町家
Introduction


通りを渡れば二条城という立地。しかしながら賑やかな観光地ではなく、小さなお店やスーパーも近くにあり人々の暮らしがそばに感じられる雰囲気が魅力です。
ビルに挟まれながらも堂々と存在感を放つ京町家。一列四室、火袋、庭など町家らしい間取と面影が残り、京都らしさ感じる佇まいが見事です。


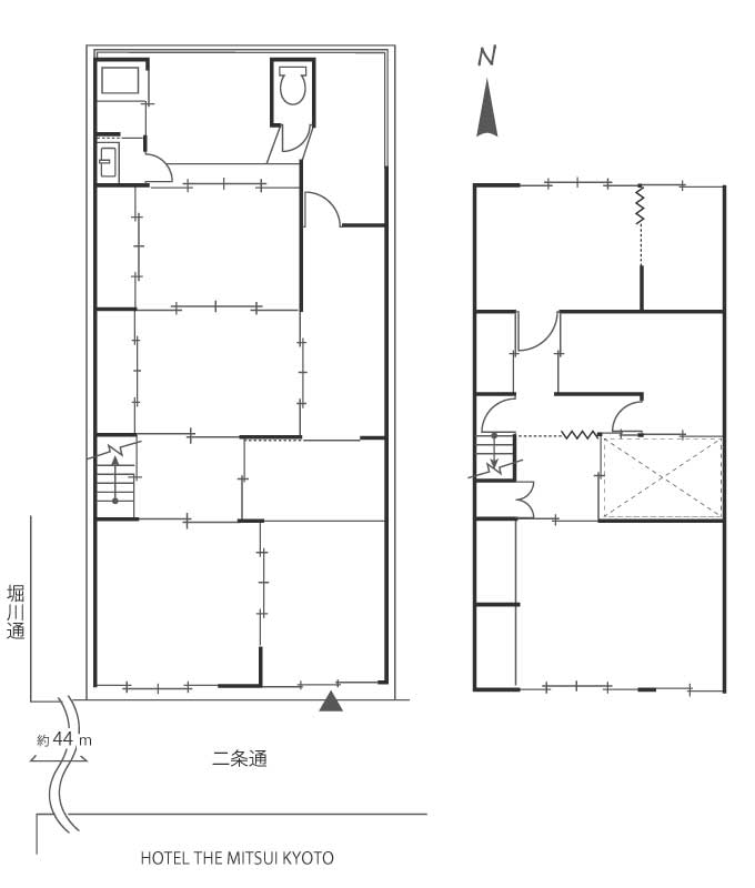
間取
お商売をされていたお家で、玄関からダイドコの手前までは広めの土間となっています。典型的な町家の一列四室の間取で裏には庭もあります。町家の趣を残してリノベーションして簡易宿泊所などでいかがでしょうか?
写真
※小さい画像をクリックすると大きな画像が表示されます。
周辺情報
世界遺産である二条城が堀川通を隔ててすぐにある立地です。ラグジュアリーホテルのHotel the Mitsui Kyotoが向かいにあり観光客が行き交う場所です。小さな個人商店が点在し、まち歩きが楽しく、バス停や地下鉄駅も徒歩で行けて便利です。
360度写真
画面をドラッグ/スワイプしたり、画面内の矢印やアイコンをクリック/フリックすることで室内の様子がご覧いただけます。
物件概要
| 価 格 | 1億1,000万円 |
|---|---|
| 種 類 | 中古住宅(京町家) |
| 所在地 | 京都市中京区二条通堀川東入矢幡町306番3 |
| なかぎょうく やわたちょう | |
| 交 通 | 地下鉄東西線 二条城前駅 2番出入口 徒歩約3分 |
| 敷地面積 | 【公簿】83.53m² |
| 私道負担 | 無 |
| 建物面積 | 【公簿】1階:59.40m² 2階:45.38m² 延べ:104.78m²(約31.69坪) |
| 【現況・簡易テープ測量】1階:約66.69m² 2階:約51.65m² 延べ:約118.34m²(約35.79坪) | |
| 建物構造 | 木造2階建 |
| 築年月 | 築不詳 ※閉鎖登記簿に明治39年6月の記録有 |
| 間 取 | 5K+納戸 |
| 接道状況 | 幅員約6.67mの南側公道に約6.75m接道 |
| 設 備 | 上下水道・都市ガス・電気 |
| 用途地域 | 商業地域 |
| 法令制限 | 15m第4種高度地区、準防火地域、歴史遺産型美観地区、一般地区、近景デザイン保全区域、事前協議区域、遠景デザイン保全区域、歴史遺産型第2種地域、都市機能誘導区域、居住誘導区域、京町家条例に基づく指定地区、既成都市区域、宅地造成等工事規制区域 |
| 引渡し/現況 | 即日/空き家 |
| 建ぺい率/容積率 | 80%/約520% |
| 地目/地勢 | 宅地/平坦 |
| 土地権利/国土法届 | 所有権/不要 |
| 小学校/中学校 | 御所南小学校 徒歩約17分(約1.3km)/京都御池中学校 徒歩約17分(約1.3km) |
| 都市計画 | 市街化区域 |
| 備 考 | ※建物は老朽化が進んでいるため、使用に際しては修繕が必要です ※売主の契約不適合責任は免責とします ※町家条例に基づく指定地区内の町家物件につき、建物の解体は着工する1年前に解体届の提出が必要となります ※本物件は現状有姿での取引とします ※宅内の残置物はそのままでの取引となります |
| 取引態様 | 仲介 |
| 担当者/物件番号 | 福井プロデューサーページ/70056 |
| 最終更新日 | 2025年11月17日(月曜日) |
| 次回更新予定日 | 2025年12月1日(月曜日) |


















